Plan
厳選プラン集
注文住宅の間取り作りの
参考になること間違いなし!!
全国のお客様から「暮らしやすい!」
「こうしてよかった!」と大評判の
期間限定
すべて
公開中!
-
9
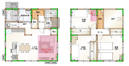
31坪/延床面積:102.68m²(31.06坪)イエテラスC 北入り32坪
-
13
34坪/延床面積:113.74m²(34.4坪)ソーラーリッチハウスS 35坪
-
14
32坪/延床面積:104.34m²(31.56坪)インナーバルコニータイプ 32坪N-1
-
15
32坪/延床面積:104.34m²(31.56坪)インナーバルコニータイプ 32坪S-1
-
16
35坪/延床面積:115.09m²(34.81坪)イエテラスB 西入り35坪
-
17
35坪/延床面積:115.09m²(34.81坪)イエテラスB 東入り35坪
-
32
35坪/延床面積:114.27m²(34.56坪)イエテラスC 東入り35坪
-
33
32坪/延床面積:104.62m²(31.65坪)イエテラスE 東入り32坪
-
35
35坪/延床面積:114.27m²(34.56坪)イエテラスA 東入り35坪
-
36
31坪/延床面積:102.68m²(31.05坪)イエテラスB 東入り32坪